国贸地产零拿地,孙志勇忙啥去了?
文/乐居财经 严明会
同为闽系房企,赴京赶考,国贸地产和建发地产的境遇却大相径庭。
短短一个多月时间,建发地产在帝都杀红了眼。它先是以24.3亿元拿下丰台新宫“回炉地”,而后又跟华润、金茂硬杠,以90.4亿元勇夺海淀朱房地块。
没有对比,就没有伤害。相较之下,国贸地产在京城就好似“小透明”。2024全年,它在北京土拍市场颗粒无收。
没有新地,意味着未来随着存量的持续去化,国贸地产就会在北京出现断粮、无房可卖的局面,压力给到了国贸地产北京公司总经理孙志勇。
但眼下,孙志勇或许最发愁的还是项目去化与回款。
一路之隔的国誉颂横空出世后,国贸瑨上更难卖出去了。
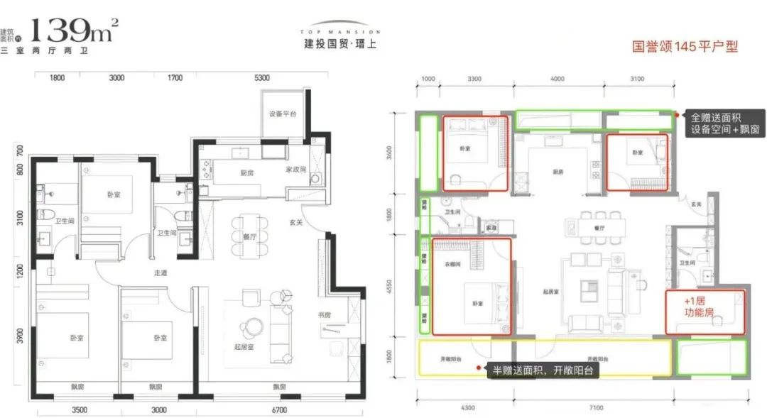
国誉颂项目户型面积段为85-145㎡的三居至四居,所有户型都是南北通透,带南向开敞阳台、北侧设备平台、侧向飘窗。
要知道瑨上那时候可没有阳台,只有飘窗可送。

国贸瑨上的网签率也很让孙志勇着急。拿证542套,网签也才84套,去化率15.5%,签约面积8264.64㎡,成交均价40954.58元/㎡,成交金额才3.38亿元。
该项目地块以13.04亿元竞得,地价履盖率不到26%。按照这个速度,孙志勇还要好几年才能把地价卖回来。
未来,通州更多带阳台、得房率更高、有“好房子”标准的新盘一出来,国贸瑨上还要面临后浪的冲击,它将彻底沦为滞销产品。
01
在开盘的时候,国贸瑨上周边并没有啥新盘,但为何销售成绩还是不理想?
这跟孙志勇的营销打法脱不了关系。在业内人士看来,“在北京以改善为主的市场,瑨上却打刚需盘的打法,以降价拉销售。买的客户是奔品质和涨价来的,你却搞个开盘再降价,人家谁敢买啊。”
目前,国贸瑨上的成交均价40954.58元/㎡,较销售指导价4.7万/m²,打了八七折。
国贸瑨上项目总建面约5.7万㎡,规划了15栋4-8层低密洋房,分为南北两个地块,北区9栋,容积率1.8;南区6栋,容积率1.6。它于去年4月开盘,供应了542套,面积段60-139㎡,主推96-142㎡三居和69-91㎡两居。
在户型设计上,国贸瑨上并不占优势。例如,75平两居属于细长条状。
一般细长条状的户型会存在通风不畅、采光差、面积浪费、得房率不高。国贸瑨上这个户型从玄关到餐厅的过道面积被浪费;卫生间是暗卫;厨房面积也不大。
眼下,城建国誉颂的户型直接对标国贸瑨上。

拿瑨上98平三居户型和国誉颂100平三居户型做一个对比。在赠送面积上,瑨上只有南北和侧边飘窗;国誉颂南向三面宽(含端户飘窗)约10.7米,开敞阳台进深达1.8米,东侧还有飘窗和设备平台为全赠送面积,户型图上是三个卧室+一个卫生间,但有预留下水管,实际设计上可做到四室两厅两卫。
国誉颂总赠送面积超15㎡,包括开敞阳台一半面积7㎡+设备平台、飘窗全赠送8㎡,加赠送面积之后得房率预计超95%。
在大户型上,瑨上也根本不是国誉颂的对手。
瑨上139平三居户型为了做到生活起居互不干扰,把起居室和客餐厅、厨房彻底分开。但这样一来,空间较为封闭,互动性较差。客人上厕所出来,会看到主人的卧室。此外,在赠送面积上也是赠送飘窗。

国誉颂145平三居户型则是经典四叶草布局,南向三面宽约14.7米,南向主卧与开敞式阳台相连,西向带转角飘窗,包括主衣帽间都有窗。这个户型的总赠送面积将超27㎡,包括开敞阳台计一半面积10.3㎡,南北侧双挑空和两处设备空间共计16.7㎡,另有西侧3个飘窗位。预计加赠送后的实际得房率可达100%。
这样看来,不管是户型布局还是赠送面积上,国誉颂对瑨上无疑是降维打击。
有意思的是,瑨上挑选的设计公司是隔壁对手北京城建集团旗下公司——北京市住宅建筑设计研究院,中标报价为375万元。
02
孙志勇选中的国贸瑨上,属于地理位置和生活配套均欠佳。
在通州楼市版图中,宋庄存在感较低,其往东没多远就是潮白河,而过了潮白河就是燕郊,燕郊的房价都斩到脚脖子。而国贸瑨上所在周边生活配套缺失,项目一公里外有一个宋庄艺术小镇。
在北京,除了通州顺义,国贸地产还布局海淀、石景山等,但也都是联合其他开发商一起打造,例如北京学府壹号院、长安誉等项目。
这也造成了国贸地产在北京并没有啥有记忆点的代表作,购房者不买单也情有可原。
此次,国贸瑨上的合作方,是有国资背景的山西建投。
值得一提的是,这宗地块仅有两家房企报名参拍,它们分别是山西建投和厦门国贸。
但在土拍现场,这二位均未举牌出价,最终由山西建投旗下的天津晋恒房地产开发有限公司(简称“晋恒房地产”)以底价13.04亿元竞得,成交楼面地价22788元/平方米。
紧接着2023年10月底,项目公司北京晋心房地产开发有限公司(简称“晋心房地产”)成立,法定代表人为冯艳华 ,并在去年2月引入厦门国贸旗下的贸悦房地产。变更后,晋恒房地产和贸悦房地产分别持股51%和49%。

诡异的是,去年7月,晋心房地产的注册资本从130400万元锐减至3000万元,下降97.69939%。
在地产圈,并不是所有的合作都是你侬我侬,国贸瑨上就有一段小插曲。
有信源称,国贸与山西建投双方持续吵架、对峙。更劲爆的是,网上流传出建投国贸瑨上项目建投方销售实名举报,项目某女领导滥用权力,欺上瞒下,无故加班,和客户乱承诺。
较为少见的是,瑨上单单项目总经理就有两位。其中,国贸地产北京公司派出了张博,山西建投城运集团京津冀区域则派出了薛俊龙。
03
像国贸地产这类闽系房企北上京城是想分散投资,避开重仓厦门和福州,没想到现在瑨上项目却让它无法抽身,甚至有可能拖累集团业绩增长的后腿。
好在这个项目是合作项目,卖不好还可以说是合作方的问题,责任都在别人。
去年一整年,孙志勇使尽浑身解数卖房,但国贸地产在北京还是难逆风翻盘。《2024年北京房企销售TOP30》榜单中,国贸地产缺席了,建发地产则位列第十。
马上要过年,孙志勇的工作压力更大了,如果无法兑现考核目标,来年能不能坐稳位置还是一个未知数。
但孙志勇或许并不在乎去留,在京城地产圈,他过往的跳槽很是频繁,并尤为热衷为闽系房企打工,先后在中骏、金辉等房企任职。
只不过眼下,对于孙志勇而言,再跳槽并不容易。在国企有一个铁饭碗,还是最优的选择。
相关文章

最新评论